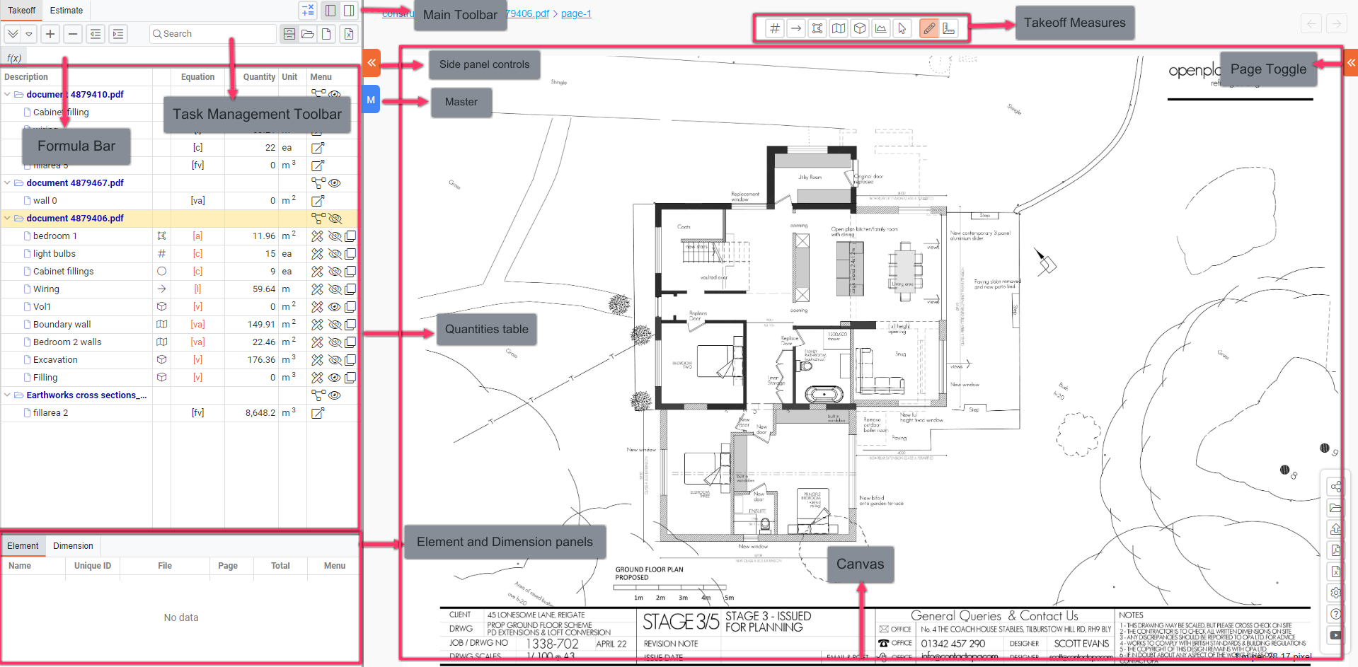
Takeoff Application Navigation

Main Toolbar
- Takeoff: The First tab, currently selected is used to input, view, and manage the takeoff quantities.
- Estimate: The Second tab is used to manage and create estimates based on the measurements taken
- Estimate Icon
: Located next to the tabs, used to access the estimate. - Panel Position Options: You can choose to position the side panel on the right
or left
side of the screen using the relevant options available at the top.
Task Management Toolbar
- Expand Option
: Allows you to expand or collapse the tasks or measurements listed in the panel. - Add Task Option
: Enables you to add a new task or measurement to the list. - Delete Task Option
: Lets you remove a selected task or measurement. - Indent
/Outdent
Options: Used for adjusting the hierarchy of tasks or measurements. - Search Bar: Facilitates quick searching within the tasks or measurements.
- Display SoQ Option
: Toggles the display of the Schedule of Quantities (SoQ). - Filter by Document
: Allows filtering of measurements based on the document being viewed. - Filter by Page
: Filters measurements specific to a certain page within the document. - Export Excel Option
: Exports the data to an Excel file for further analysis or reporting.
Formula Bar
- Displays and allows input of equations or calculations related to the quantities.
Quantities Table
- Located beneath the Task Management toolbar, the quantities table displays the list of documents, tasks, or measurements along with their quantities, units, and other details
Element and Dimension Detail Panels
- Element Detail Panel: Below the quantities table, where individual elements of a task or measurement are listed.
- Dimension Detail Panel: Displays the dimensions related to the selected element.
Side Panel Controls
- Side Panel Toggle Button
/
: Positioned on the side panel, this button closes and opens the side panel when clicked. - Master Button (M) : Stands for ‘Master’, which is used for transferring or applying the current takeoff project settings to another project.
Canvas
- The large area on the center of the screen where the floor plan or document is displayed for markup and measurement.
Page Toggle Button
- The page toggle button
/
allows you to switch between pages of a document.
Last updated on
